De nombreux pays bénéficient d’un urbanisme assez libéral pour créer des constructions toutes en finesse et étonnantes. Focus !
Belles découvertes sur le site chinois de Design Idea MSG. Le précédent gouvernement a déjà réformer le permis de construire en autorisant 30% de surface en plus, il faudrait maintenant dépoussiérer les conditions d’acceptation des projets d’architectes tout en préservant tout de même certains environnements. Paris rempli d’extensions sur les toits des appartements de type Haussmanniens ne serait plus Paris. Un juste milieu entre Paris et Londres serait parfait.
Japon

Maison résidentielle par Yusuke Kaeasawa - Tokyo

Maison résidentielle par Yusuke Kaeasawa - Tokyo

Maison résidentielle par Yusuke Kaeasawa - Tokyo

Maison résidentielle par Yusuke Kaeasawa - Tokyo

Maison résidentielle par Yusuke Kaeasawa - Tokyo

Wall par Nishihara Sabaoarch / Tokyo

Wall par Nishihara Sabaoarch / Tokyo

Wall par Nishihara Sabaoarch / Tokyo

Wall par Nishihara Sabaoarch / Tokyo

Wall par Nishihara Sabaoarch / Tokyo

Wall par Nishihara Sabaoarch / Tokyo

Wall par Nishihara Sabaoarch / Tokyo

Wall par Nishihara Sabaoarch / Tokyo

Wall par Nishihara Sabaoarch / Tokyo

Wall par Nishihara Sabaoarch / Tokyo

Maison Roadside Hu par Yoshio Ohno et Hidetaka Rakahara / Japon

Maison Roadside Hu par Yoshio Ohno et Hidetaka Rakahara / Japon

Maison Roadside Hu par Yoshio Ohno et Hidetaka Rakahara / Japon

Maison Roadside Hu par Yoshio Ohno et Hidetaka Rakahara / Japon

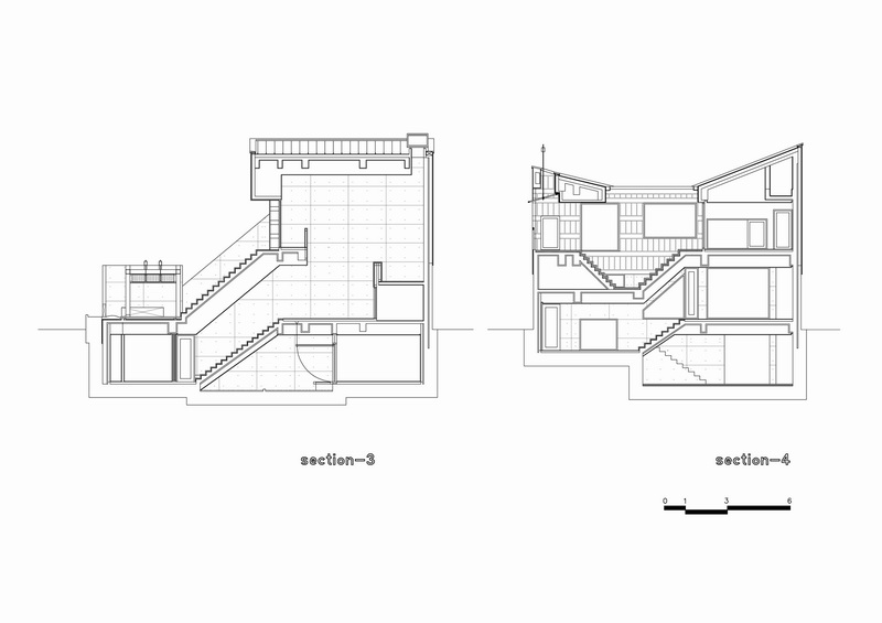
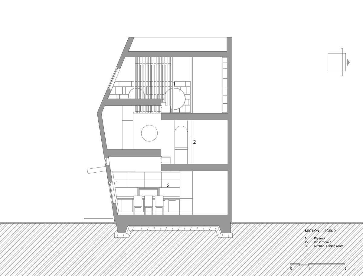
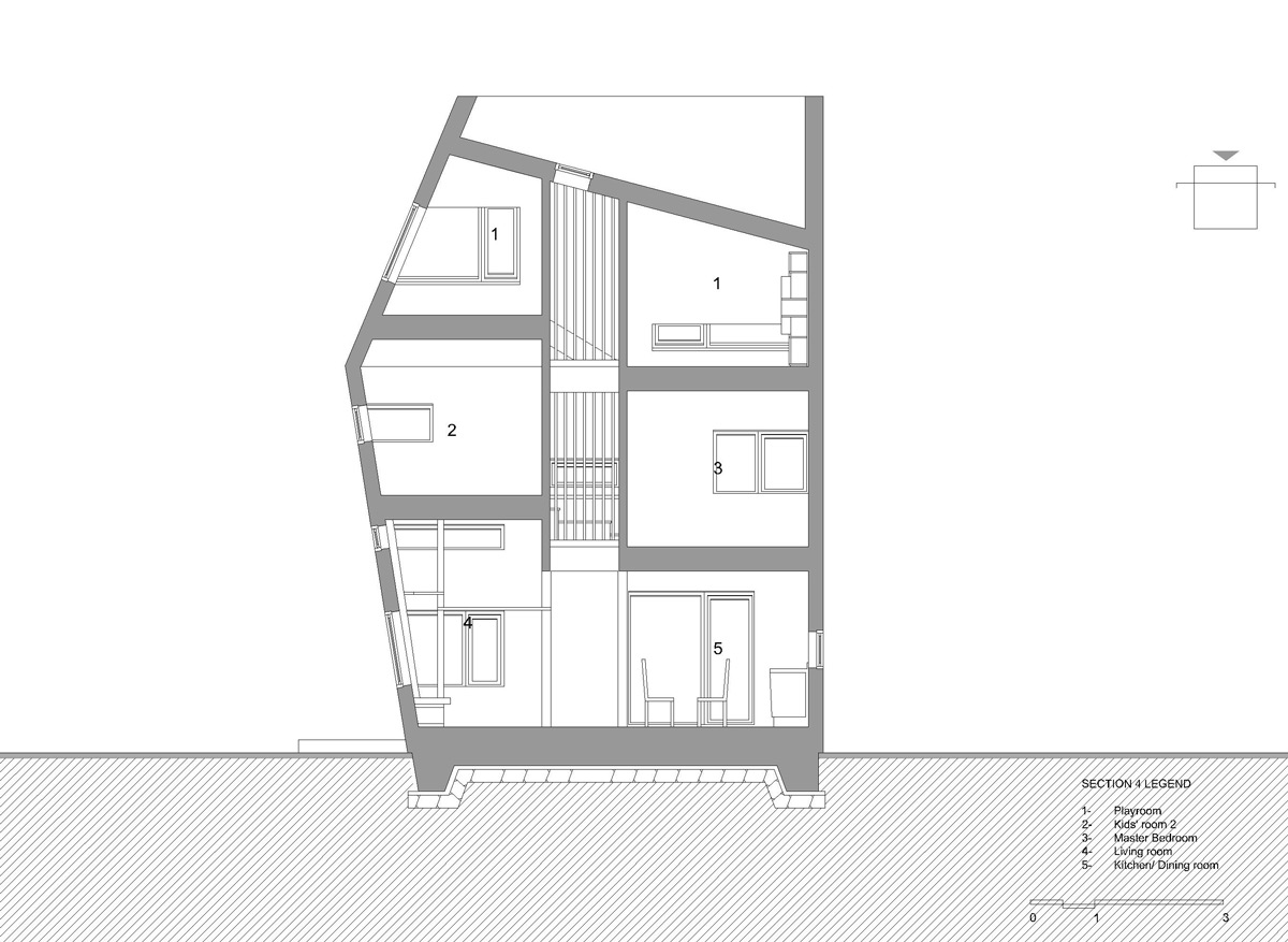
Maison résidentielle par Tato Architects - Japon

Maison résidentielle par Tato Architects - Japon

Maison résidentielle par Tato Architects - Japon

Maison résidentielle par Tato Architects - Japon

Maison résidentielle par Tato Architects - Japon

Maison résidentielle par Tato Architects - Japon
Corée du Sud

White House par Design Band Yoap - Corée du Sud

White House par Design Band Yoap - Corée du Sud

White House par Design Band Yoap - Corée du Sud

White House par Design Band Yoap - Corée du Sud

White House par Design Band Yoap - Corée du Sud

Maison résidentielle Lim Geo Dang par Iroje KHM Architects - Corée du Sud

Maison résidentielle Lim Geo Dang par Iroje KHM Architects - Corée du Sud

Maison résidentielle Lim Geo Dang par Iroje KHM Architects - Corée du Sud

Maison résidentielle Lim Geo Dang par Iroje KHM Architects - Corée du Sud

Maison résidentielle Lim Geo Dang par Iroje KHM Architects - Corée du Sud

Starwars House par Moon Hoon / Corée du sud

Starwars House par Moon Hoon / Corée du sud

Starwars House par Moon Hoon / Corée du sud

Starwars House par Moon Hoon / Corée du sud

Starwars House par Moon Hoon / Corée du sud

Starwars House par Moon Hoon / Corée du sud
Argentine

Maison multi-fonctionnelle - Argentine

Maison multi-fonctionnelle - Argentine

Maison multi-fonctionnelle - Argentine
En savoir +
Le superbe site web de Design Chinois : Idea msg
Décrêt initié par le président Sarkozy sur les 30 % d’augmentation de surface sur le permis de construire